2216 NW 246TH TER
2216 NW 246TH TER
2216 NW 246TH TER
SEE ALL PHOTOS
2216 NW 246TH TER
2216 NW 246TH TER
2216 NW 246TH TER
Sold

2216 NW 246TH TER

2216 NW 246TH TER, NEWBERRY, FL 32669

$324,990
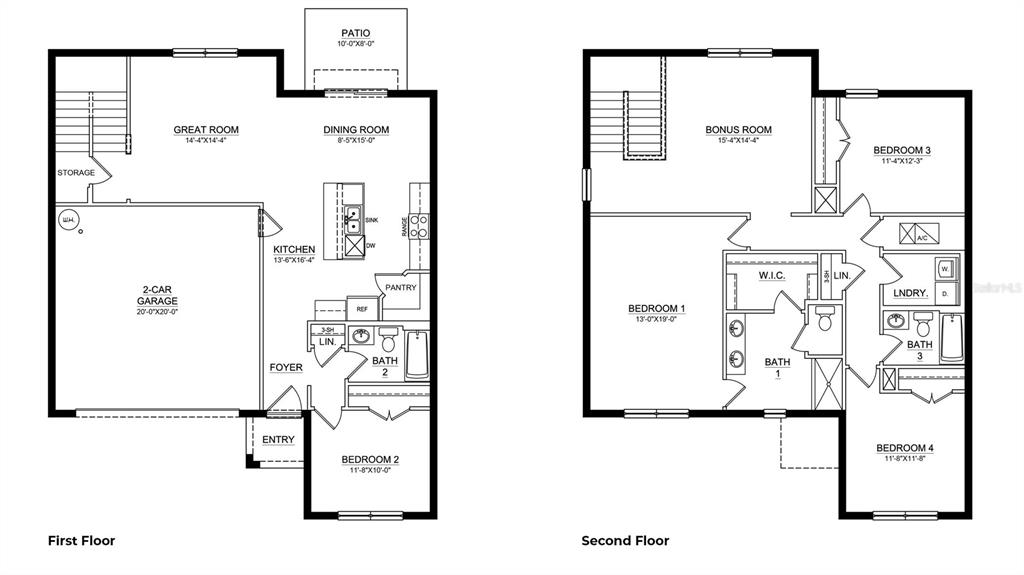
One or more photo(s) has been virtually staged. Under Construction. This two-story home features an open concept first-floor living space with a guest bedroom on the first floor. The stairs to the second story land in a spacious bonus room fit to serve as an additional entertainment space, a playroom, or an office. Bedroom 1 includes an ensuite bath with a roomy walk-in closet. The laundry room is perfectly situated between the other two bedrooms next to the third bathroom. This home comes with a refrigerator, built-in dishwasher, electric range, microwave, washer, and dryer. Pictures, photographs, colors, features, and sizes are for illustration purposes only and will vary from the homes as built. Home and community information including pricing, included features, terms, availability and amenities are subject to change and prior sale at any time without notice or obligation. CRC057592.

4
beds

3
baths

2,288 Sq.Ft. LIVING AREA

5,662 Sq.Ft. lot

Ashlen Hayward

Ashlen Hayward

Features & Amenities

Interior

  • total bedrooms4
  • Total bathrooms3
  • full bathrooms3
  • Flooring Carpet, Ceramic Tile
  • APPLIANCES Dishwasher, Dryer, Microwave, Range, Refrigerator, Washer
  • other interior Features Open Floorplan

Area & Lot

  • Status Sold
  • Living Area2,288 Sq.Ft.
  • Lot Area5,662 Sq.Ft.
  • MLS® IDT3387233
  • TypeResidential
  • YEAR BUILT2022
  • Elementary SchoolNewberry Elementary School-AL
  • Middle SchoolOak View Middle School
  • High SchoolNewberry High School-AL

Exterior

  • STORIES2
  • Garage Space2.0
  • water SourcePublic
  • utilitiesCable Available
  • roofShingle
  • HEAT TYPECentral, Electric
  • AIR CONDITIONINGCentral Air
  • sewerPublic Sewer
  • SubstructureSlab
  • other exterior FeaturesIrrigation System

Financial

  • Sales Price$324,990
  • HOA $36/mo
  • Zoning PUD

Work With Ashlen

Ashlen listens and understands your unique goals and priorities. Only then does she execute tailored solutions to meet your real estate needs. She is committed to going above and beyond to deliver a personalized level of service that ensures your success. “It’s your assessment of my value that matters most, and I do not take that opportunity for granted. I look forward to getting to know you.

Follow Me on Instagram